在使用solidworks做工程图的时候,有时会会出现很多箭头或者螺纹线,如何隐藏掉呢,其实很简单。以笔者的经验来看,有两种隐藏方式。下面以图文方式分享出来。

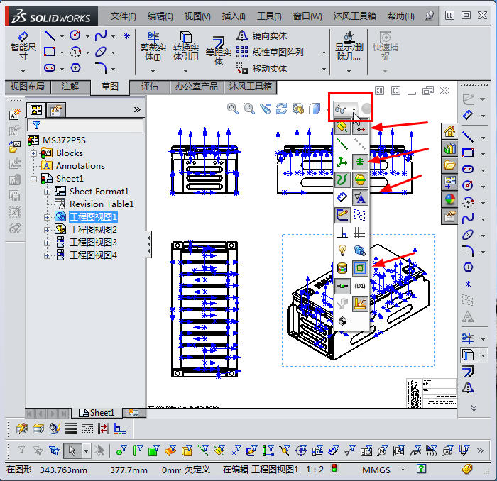
第一种方法,点击“隐藏/显示项目”工具,也就是那个眼镜按钮,弹出下拉菜单,可以隐藏原点、基准面、坐标系、注释、草图,,,等等很多项目,如图所示。

第二种方法:点击“视图”-“隐藏所有的类型”,如图所示。

隐藏后的工程图,如图所示

本站文章均为作者原创,如需转载请标注出处,谢谢!
在使用solidworks做工程图的时候,有时会会出现很多箭头或者螺纹线,如何隐藏掉呢,其实很简单。以笔者的经验来看,有两种隐藏方式。下面以图文方式分享出来。

第一种方法,点击“隐藏/显示项目”工具,也就是那个眼镜按钮,弹出下拉菜单,可以隐藏原点、基准面、坐标系、注释、草图,,,等等很多项目,如图所示。

第二种方法:点击“视图”-“隐藏所有的类型”,如图所示。

隐藏后的工程图,如图所示

本站文章均为作者原创,如需转载请标注出处,谢谢!